
Thiết kế – Thi công trọn gói

Thiết kế – Thi công trọn gói

Thiết kế - Thi công trọn gói

Thiết kế – Thi công trọn gói

Thông tin sơ bộ về công trình
Charmant Suites được xây dựng theo mô hình khách sạn boutique với sứ mệnh mang những trải nghiệm tuyệt vời đến từng khoảnh khắc cho khách hàng bằng sự tiếp đón nồng hậu và chất lượng dịch vụ thượng hạng. Chính vì vậy việc lựa chọn và ký kết hợp đồng thi công lắp đặt trọn gói hệ thống bếp là một bước quan trọng trong quá trình xây dựng dự án khách sạn đẳng cấp như Charmant Suites. Để đảm bảo chất lượng và tính đồng nhất, việc tìm kiếm chuyên gia bếp có kinh nghiệm là yếu tố then chốt.


(Hình ảnh thuộc sở hữu KAINOX)
Charmant Suites được xây dựng theo mô hình khách sạn boutique với sứ mệnh mang những trải nghiệm tuyệt vời đến từng khoảnh khắc cho khách hàng bằng sự tiếp đón nồng hậu và chất lượng dịch vụ thượng hạng. Chính vì vậy việc lựa chọn và ký kết hợp đồng thi công lắp đặt trọn gói hệ thống bếp là một bước quan trọng trong quá trình xây dựng dự án khách sạn đẳng cấp như Charmant Suites. Để đảm bảo chất lượng và tính đồng nhất, việc tìm kiếm chuyên gia bếp có kinh nghiệm là yếu tố then chốt.


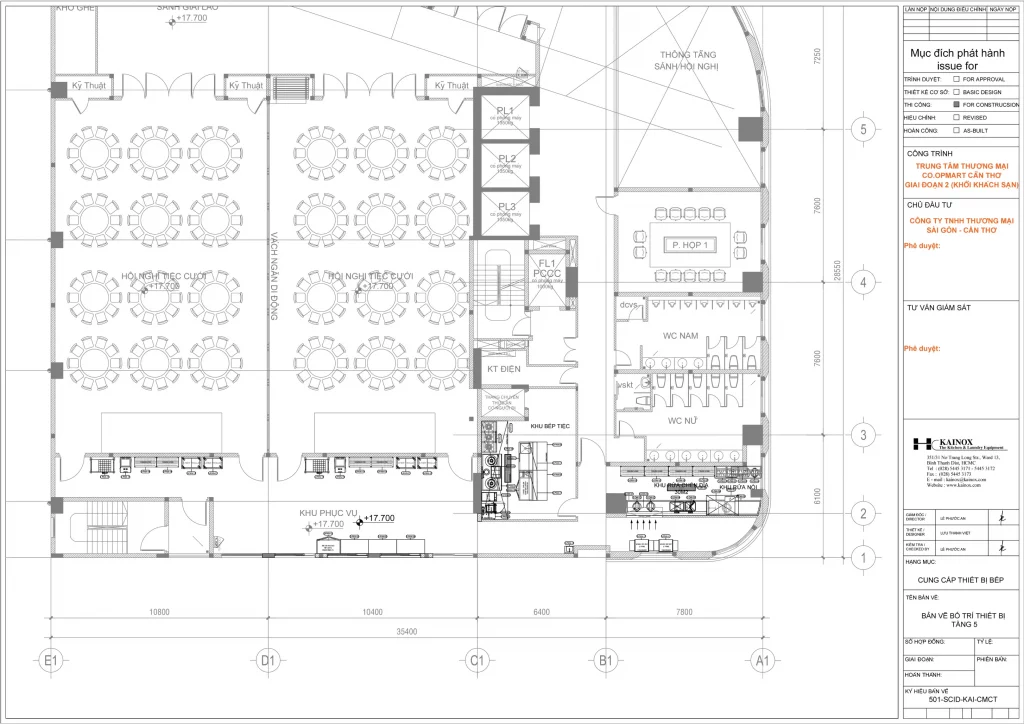
(Bản phác thảo thiết kế khu vực Bếp do Công ty CP SX TM DV KAINOX thực hiện)
Trong suốt quá trình thi công ty KAINOX luôn đặt những yêu cầu, tiêu chí từ phía CĐT lên hàng đầu nhằm đảm bảo tính đồng nhất, kết hợp hài hòa giữa khu vực Bếp và đường nét tổng thể của dự án để tạo nên một khối kiến trúc hoàn hảo..
Hình ảnh thực tế khi Công ty TNHH SX TM DV KAINOX triển khai thi công
Công ty KAINOX xin gửi lời cảm ơn chân thành và sâu sắc nhất tới Liên hiệp Hợp tác xã thương mại TP.HCM (Saigon Co.op) đã tin tường và trao niềm tin cho chúng tôi trong dự án thiết kế hệ thống Bếp cho Charmant Suites.
Trong suốt hơn 20 năm trong ngành, chúng tôi đã thực hiện hàng trăm dự án thiết kế, sản xuất và thi công cho hệ thống bếp ăn công nghiệp trên toàn quốc. Các công trình dự án do KAINOX thực hiện và bàn giao thành công đều được khách hàng đánh giá cao và nhận được sự phản hồi tích cực về độ bền đẹp, chất lượng sản phầm, giá cả hợp lý và chế độ bảo hành cực tốt.
Với thành công trong dự án thiết kế bếp cho Charmant Suites, Công ty KAINOX rất mong nhận được sự hợp tác trở lại của đối tác trong các công trình tiếp theo.
Kính chúc Charmant Suites sẽ thành công và phát triển vượt bậc trong thời gian sắp tới!

LÝ DO CHỌN KAINOX



KAINOX đã thực hiện nhiều dự án về sản xuất và lắp đặt các thiết bị nhà bếp chuyên nghiệp cho các công trình trong nước và quốc tế. KAINOX có hơn 200 dự án tại Việt Nam và Lào, và là đối tác của nhiều nhãn hàng uy tín trên thế giới.
Đặc biệt, KAINOX chuyên thi công các giải pháp nhà bếp cao cấp, bao gồm nhà hàng, khách sạn 5 sao, và các khu căn tin bệnh viện chuẩn quốc tế. Với sự chuyên môn trong thiết kế, sản xuất và lắp đặt, KAINOX cung cấp các giải pháp bếp công nghiệp tùy chỉnh theo yêu cầu của khách hàng.
Với đội ngũ kỹ thuật có chuyên môn cao và kinh nghiệm, KAINOX đảm bảo tiến độ thi công và chất lượng lắp đặt luôn đạt yêu cầu cao, mang lại sự an tâm cho khách hàng trong suốt quá trình hợp tác.
20+
NĂM KINH NGHIỆM
10000+
KHÁCH HÀNG HÀI LÒNG
1000+
CÔNG TRÌNH HOÀN THIỆN
2000+
SẢN PHẨM ĐA DẠNG


Giải pháp thiết kế linh hoạt KAINOX thiết kế & cung cấp các giải pháp bếp công nghiệp tùy chỉnh, phù hợp không gian và yêu cầu cụ thể của khách hàng. Điều này giúp tối ưu hóa quy trình làm việc & tận dụng tối đa không gian bếp.
Giá trị tốt cho khách hàng đầu tư KAINOX cung cấp sản phẩm với mức giá cạnh tranh, nhưng không làm giảm chất lượng.Tổng chi phí sở hữu, từ giá mua ban đầu đến chi phí vận hành và bảo trì, đều được tối ưu hóa để phù hợp với ngân sách.
Công ty KAINOX cam kết cung cấp các thiết bị bếp công nghiệp chất lượng cao, được sản xuất từ các vật liệu bền bỉ như thép không gỉ, đảm bảo an toàn thực phẩm và độ bền trong môi trường khắc nghiệt.
Dịch vụ hậu mãi và bảo hành toàn diện bao gồm bảo hành dài hạn và dịch vụ bảo trì định kỳ. Đội ngũ kỹ thuật của KAINOX sẵn sàng hỗ trợ khách hàng trong mọi tình huống, từ lắp đặt đến sửa chữa.