Thông tin dự án
Giới thiệu về Trụ sở MABUCHI VIET NAM
Mabuchi Motor Việt Nam là một công ty con của Tập đoàn Mabuchi Motor Nhật Bản, chuyên sản xuất động cơ điện loại nhỏ và linh kiện điện tử. Công ty có hai nhà máy tại Đồng Nai (KCN Biên Hòa 2 và KCN Amata). Sản phẩm của công ty được ứng dụng trong các ngành ô tô, đồ gia dụng, thiết bị văn phòng, và thiết bị nghe nhìn.
Thông tin sơ bộ về công trình
ĐƠN VỊ: Công ty CP SX TM DV KAINOX
Hạng mục: Tư vấn – Thi công trọn gói hệ thống Bếp – Suất ăn công nghiệp
Mô hình bếp ăn tập thể tại Mabuchi được thiết kế theo tiêu chuẩn hiện đại, tối ưu hóa công năng và quy trình vận hành. Hệ thống bếp kết hợp giữa tính tiện lợi – an toàn – tự động hóa, đáp ứng nhu cầu phục vụ hàng nghìn cán bộ, công nhân viên mỗi ngày với tiêu chuẩn cao về chất lượng, năng suất và vệ sinh an toàn thực phẩm.
Quy mô và phạm vi thực hiện
KAINOX phụ trách toàn bộ các hạng mục chính bao gồm:
– Khảo sát – thiết kế tổng thể khu bếp theo dây chuyền một chiều: tiếp nhận thực phẩm → sơ chế → nấu nướng → chia suất → khu rửa – hoàn trả dụng cụ.
– Sản xuất & cung cấp thiết bị bếp công nghiệp: bếp hầm thấp công suất, tủ hấp cơm, hệ thống rửa, xe đẩy khay chuyên dụng, tủ giữ nóng thức ăn…
– Thi công hệ thống cấp gas trung tâm, cấp thoát nước, điện, hút mùi – thông gió công nghiệp.
– Kiểm tra – chạy thử – bàn giao vận hành an toàn.
Tất cả thiết bị inox bàn, kệ, chậu rửa… bằng inox gia công theo yêu cầu đều được KAINOX trực tiếp gia công tại nhà máy, đảm bảo chất lượng đồng bộ, độ bền cao và đạt chuẩn an toàn.
(Hình ảnh thuộc sở hữu KAINOX)
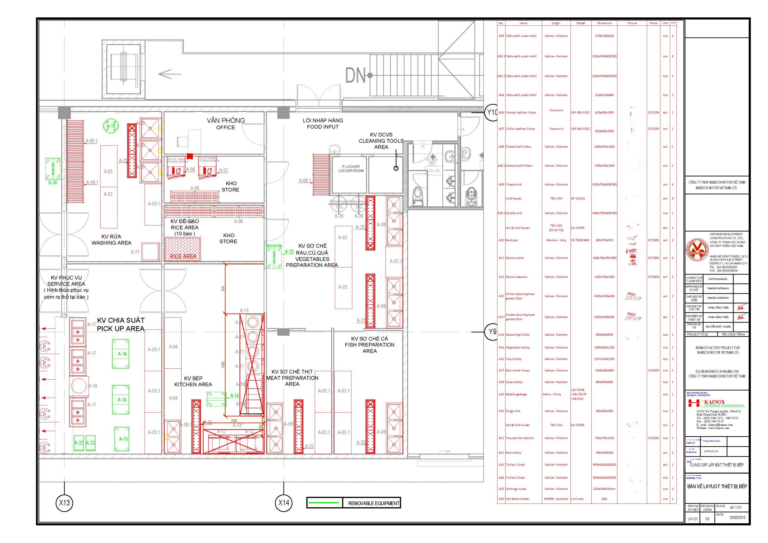
- Công ty CP SX TM DV KAINOX tiến hành khảo sát & lên bản vẽ thiết kế
Công ty KAINOX đã tiến hành khảo sát hiện trạng và lên bản vẽ phác thảo chi tiết cho dự án bếp ăn tập thể tại Mabuchi, với mục tiêu đảm bảo không gian bếp khoa học – vận hành hiệu quả – đáp ứng tiêu chuẩn an toàn thực phẩm.
Quy trình thiết kế được triển khai từ phân tích không gian lắp đặt, hệ thống thông gió, bố trí thiết bị đến luồng di chuyển công việc, giúp tối ưu hóa quy trình chế biến và phục vụ hàng nghìn nhân viên mỗi ngày.
Bản vẽ của KAINOX không chỉ đáp ứng yêu cầu kỹ thuật và công năng, mà còn thể hiện tính thẩm mỹ, độ bền và hiệu suất vận hành cao, góp phần tạo nên không gian bếp hiện đại, chuyên nghiệp và an toàn cho Mabuchi.
(Bản phác thảo bố trí thiết bị Bếp do công ty CP SX TM DV KAINOX)
Công ty KAINOX tiến hành thi công thực tế dự án
Tiến độ và quy trình thi công
Ngay sau khi nhận bàn giao mặt bằng, đội ngũ kỹ sư KAINOX đã:
– Lên bản vẽ chi tiết, tối ưu luồng di chuyển trong khu bếp.
– Thi công đồng bộ các hạng mục trong thời gian ngắn, đúng tiến độ cam kết.
– Kiểm định an toàn điện – gas – nước trước khi nghiệm thu.
– Bàn giao hệ thống vận hành thực tế và hướng dẫn kỹ thuật cho đội ngũ nhà bếp Mabuchi.
Với phương châm “Thi công chuẩn xác – Bàn giao đúng hẹn – Vận hành hiệu quả”, dự án được hoàn thành đúng tiến độ, mang đến không gian bếp hiện đại, sạch sẽ và tiện nghi cho khu nhà ăn nhân viên.
(Hình ảnh thuộc sở hữu KAINOX)
-
Công ty CP SX TM DV KAINOX hoàn thành dự án theo đúng tiến độ đã cam kết
KAINOX xin gửi lời cảm ơn chân thành đến Ban quản lý dự án Mabuchi Việt Nam đã tin tưởng lựa chọn chúng tôi là đối tác thực hiện hệ thống bếp công nghiệp cho nhà máy. Chúng tôi cam kết tiếp tục đồng hành trong công tác bảo trì – bảo dưỡng – nâng cấp thiết bị định kỳ, đảm bảo khu bếp luôn hoạt động an toàn, ổn định và tiết kiệm chi phí lâu dài.
Trong suốt hơn 20 năm trong ngành, chúng tôi đã thực hiện hàng trăm dự án thiết kế, sản xuất và thi công cho hệ thống bếp ăn công nghiệp trên toàn quốc. Các công trình dự án do KAINOX thực hiện và bàn giao thành công đều được khách hàng đánh giá cao và nhận được sự phản hồi tích cực về độ bền đẹp, chất lượng sản phẩm, giá cả hợp lý và chế độ bảo hành cực tốt.
📍 Liên hệ KAINOX
Bạn đang tìm kiếm giải pháp bếp công nghiệp cho nhà máy, xí nghiệp hoặc khu suất ăn tập thể?
KAINOX cung cấp dịch vụ thiết kế – sản xuất – thi công trọn gói, giúp tối ưu không gian và nâng cao hiệu quả vận hành.
📞 Hotline: 0931 342 048
🌐 Website: www.kainox.com
🏭 Nhà máy sản xuất: Số 44/13 Vĩnh Phú 41, KP.Hòa Long, P. Lái Thiêu, TP. HCM
CÁC DỰ ÁN KAINOX ĐÃ TRIỂN KHAI
LÝ DO CHỌN KAINOX
HOTLINE: 093 134 2048
Hỗ trợ khách hàng 24/7
MUA SẢN PHẨM KAINOX
TẶNG
NGAY
100
%
PHÍ THIẾT KẾ
Đối Tác Hơn +20 Năm Với KAINOX
CHỨNG CHỈ - CHỨNG NHẬN
KAINOX đã thực hiện nhiều dự án về sản xuất và lắp đặt các thiết bị nhà bếp chuyên nghiệp cho các công trình trong nước và quốc tế. KAINOX có hơn 200 dự án tại Việt Nam và Lào, và là đối tác của nhiều nhãn hàng uy tín trên thế giới.
Đặc biệt, KAINOX chuyên thi công các giải pháp nhà bếp cao cấp, bao gồm nhà hàng, khách sạn 5 sao, và các khu căn tin bệnh viện chuẩn quốc tế. Với sự chuyên môn trong thiết kế, sản xuất và lắp đặt, KAINOX cung cấp các giải pháp bếp công nghiệp tùy chỉnh theo yêu cầu của khách hàng.
Với đội ngũ kỹ thuật có chuyên môn cao và kinh nghiệm, KAINOX đảm bảo tiến độ thi công và chất lượng lắp đặt luôn đạt yêu cầu cao, mang lại sự an tâm cho khách hàng trong suốt quá trình hợp tác.
MỌI SẢN PHẨM ĐỀU ĐƯỢC BẢO HÀNH CHÍNH HÃNG
NHỮNG CON SỐ ĐẠI DIỆN KAINOX
20+
NĂM KINH NGHIỆM
10000+
KHÁCH HÀNG HÀI LÒNG
1000+
CÔNG TRÌNH HOÀN THIỆN
2000+
SẢN PHẨM ĐA DẠNG
MUA SẢN PHẨM KAINOX
Tặng ngay
100
%
phí thiết kế
Chuyên gia bếp công nghiệp
Tư Vấn Tận Tâm - Chất Lượng Xứng Tầm
Giải pháp thiết kế linh hoạt KAINOX thiết kế & cung cấp các giải pháp bếp công nghiệp tùy chỉnh, phù hợp không gian và yêu cầu cụ thể của khách hàng. Điều này giúp tối ưu hóa quy trình làm việc & tận dụng tối đa không gian bếp.
Giá trị tốt cho khách hàng đầu tư KAINOX cung cấp sản phẩm với mức giá cạnh tranh, nhưng không làm giảm chất lượng.Tổng chi phí sở hữu, từ giá mua ban đầu đến chi phí vận hành và bảo trì, đều được tối ưu hóa để phù hợp với ngân sách.
Công ty KAINOX cam kết cung cấp các thiết bị bếp công nghiệp chất lượng cao, được sản xuất từ các vật liệu bền bỉ như thép không gỉ, đảm bảo an toàn thực phẩm và độ bền trong môi trường khắc nghiệt.
Dịch vụ hậu mãi và bảo hành toàn diện bao gồm bảo hành dài hạn và dịch vụ bảo trì định kỳ. Đội ngũ kỹ thuật của KAINOX sẵn sàng hỗ trợ khách hàng trong mọi tình huống, từ lắp đặt đến sửa chữa.
























