Thông tin dự án
Giới thiệu về Trường Quốc tế Nam Sài Gòn
Là trường công lập hoạt động theo cơ chế tự chủ tài chính và tổ chức bán trú 100%. Nhà trường chú trọng đầu tư xây dựng hệ thống bếp ăn, khu vực ăn thoáng mát, hợp vệ sinh để đảm bảo phát triển toàn diện cả về thể chất và trí tuệ cho học sinh.
Bếp ăn tập thể (tự tổ chức) của nhà trường được Ủy ban nhân dân Quận 7, Trung tâm Y tế dự phòng Quận 7 kiểm tra thường xuyên và cấp Giấy chứng nhận đủ điều kiện an toàn vệ sinh thực phẩm (Số cấp : 29/2014/ATTP-CNĐĐK). Bếp ăn của trường được xây dựng theo quy định “bếp ăn một chiều” từ nơi tiếp nhận đến quá trình sơ chế, quá trình chuẩn bị nấu đến khâu chia thức ăn.
Thông tin sơ bộ về công trình
ĐƠN VỊ: Công ty CP SX TM DV KAINOX
Hạng mục: Thi công trọn gói hệ thống Bếp ăn bán trú
Công ty CP SX TM DV KAINOX vinh dự được lựa chọn là đơn vị thiết kế và thi công trọn gói hệ thống bếp công nghiệp cho Trường Tiểu học – THCS – THPT Nam Sài Gòn (Quận 7, TP.HCM).
Trong định hướng phát triển toàn diện thể chất và trí tuệ, Trường Quốc tế Nam Sài Gòn đã tin tưởng lựa chọn KAINOX để khảo sát – thiết kế – thi công hệ thống bếp ăn một chiều. Đáp ứng tiêu chuẩn phục vụ hàng nghìn suất ăn mỗi ngày. Dựa trên yêu cầu thực tế và tiêu chuẩn của mô hình bếp học đường, KAINOX triển khai đồng bộ các hạng mục:
- Thiết kế dây chuyền bếp theo nguyên tắc “một chiều”: từ khu tiếp nhận → sơ chế → chế biến → chia khẩu phần → khu rửa.
- Gia công & cung cấp hệ thống thiết bị inox cao cấp gồm: Bếp hầm thấp, chảo nghiêng tay quay, tủ hấp cơm, bàn sơ chế, chậu rửa, tủ sấy khay, hệ thống kệ inox, xe đẩy, thiết bị khu rửa…
- Thi công hệ thống điện – nước – gas – hút mùi – thông gió, đảm bảo vận hành an toàn, ổn định, phù hợp môi trường của trường học.
- Tối ưu không gian bếp, giúp đội ngũ cấp dưỡng thao tác nhanh, hạn chế rủi ro và dễ dàng vệ sinh sau giờ ăn.
→ Toàn bộ thiết bị inox được sản xuất trực tiếp tại nhà máy KAINOX, đảm bảo độ bền, tiêu chuẩn riêng và sự đồng bộ trong hệ thống.
(Hình ảnh thuộc sở hữu KAINOX)
- Công ty CP SX TM DV KAINOX tiến hành khảo sát & lên bản vẽ thiết kế
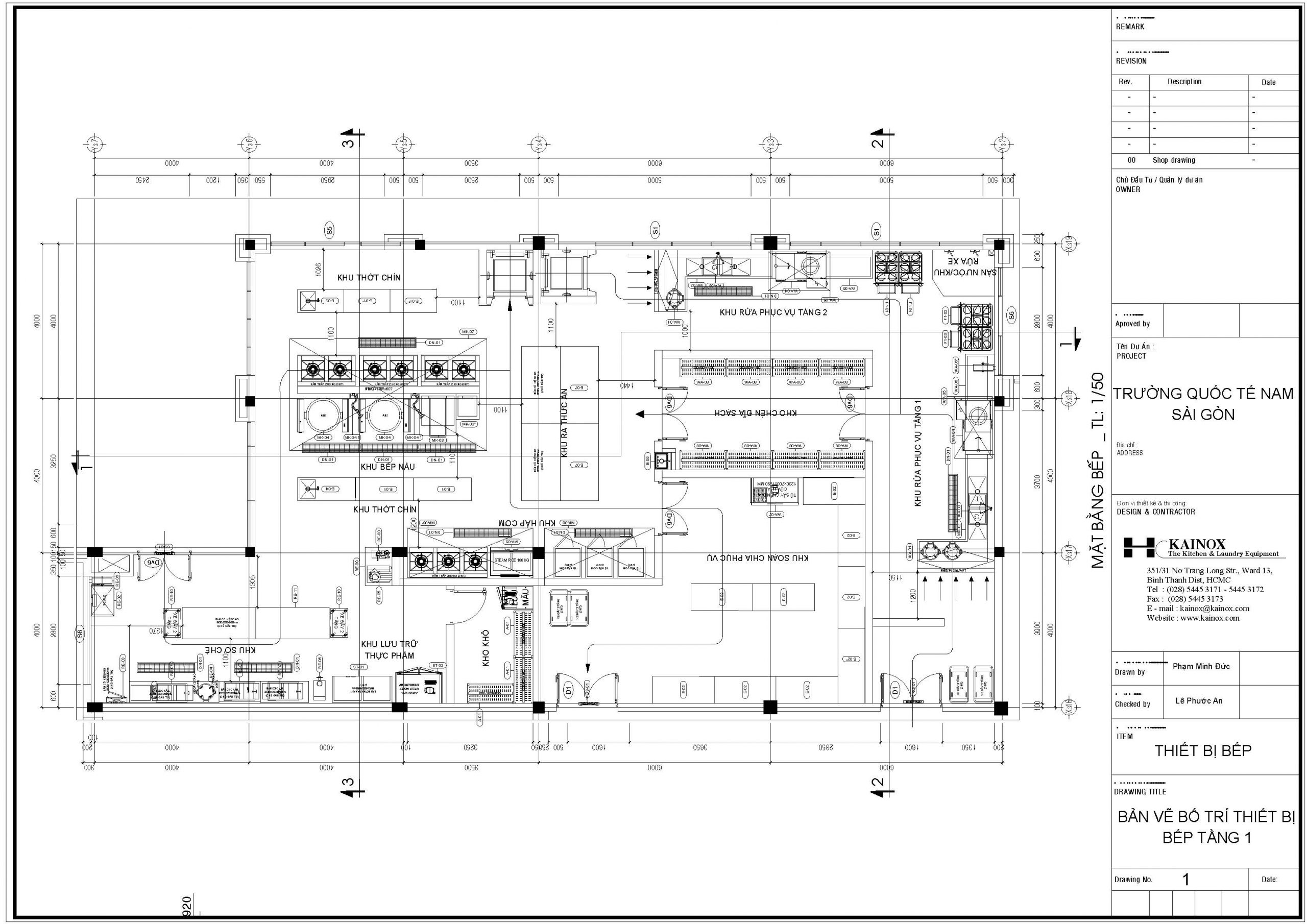
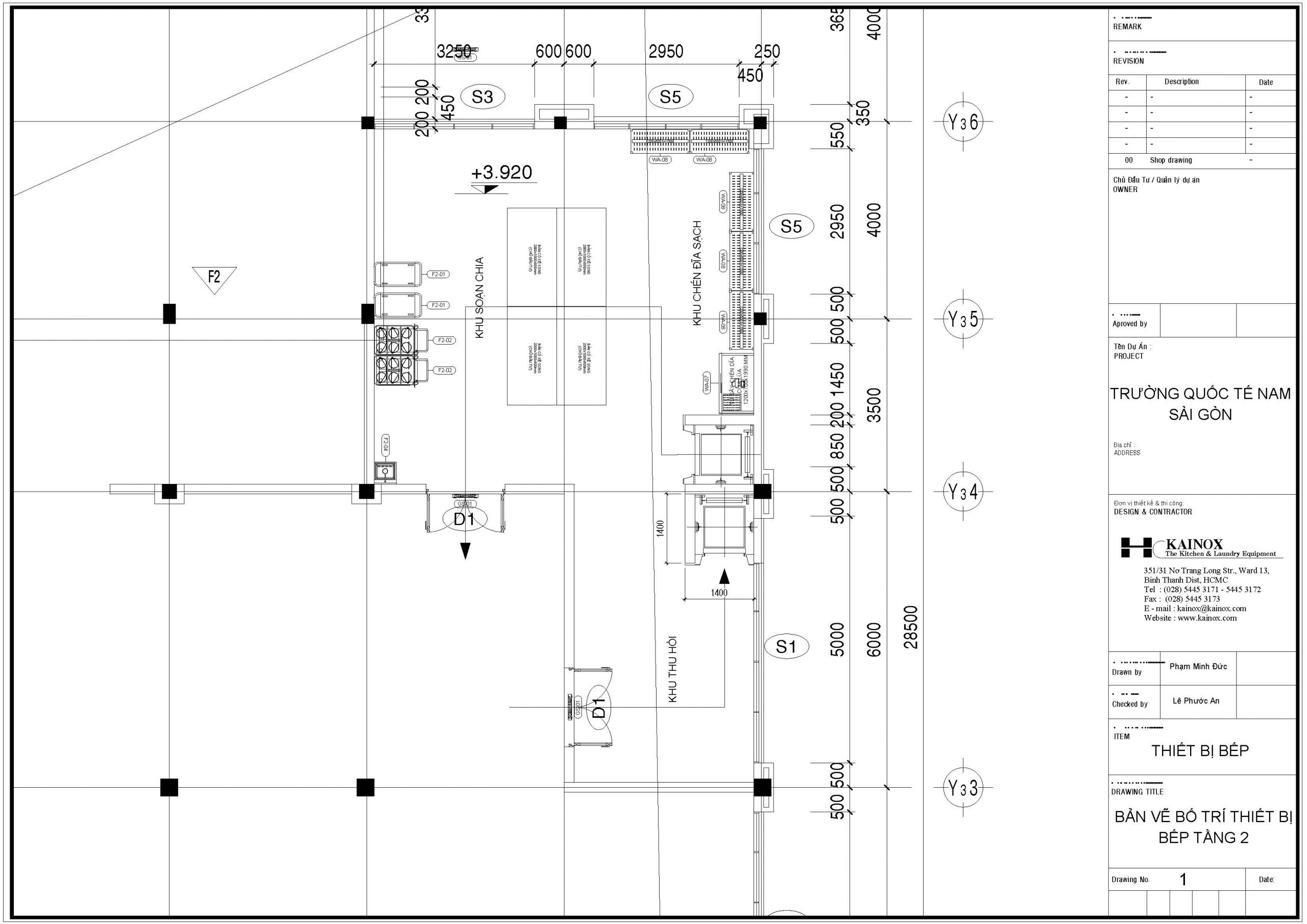
Công ty KAINOX đã tiến hành khảo sát hiện trạng và lên bản vẽ phác thảo chi tiết cho dự án bếp ăn bán trú tại Trường Quốc tế Nam Sài Gòn, với mục tiêu xây dựng không gian bếp khoa học – an toàn – phù hợp quy mô phục vụ học sinh hằng ngày.
Quy trình thiết kế được thực hiện từ phân tích mặt bằng, hệ thống thông gió – hút khói, bố trí thiết bị inox đến luồng di chuyển của đội ngũ cấp dưỡng. Đảm bảo tuân thủ nguyên tắc “bếp một chiều” và hạn chế tối đa nguy cơ nhiễm chéo trong quá trình chế biến.
Bản vẽ do KAINOX triển khai không chỉ đáp ứng đầy đủ yêu cầu kỹ thuật và công năng của một bếp học đường hiện đại, mà còn đảm bảo tính thẩm mỹ, độ bền và hiệu suất vận hành cao, góp phần mang đến một khu bếp sạch sẽ – chuyên nghiệp – an toàn dành cho học sinh Trường Quốc tế Nam Sài Gòn.
(Bản phác thảo bố trí thiết bị Bếp do công ty CP SX TM DV KAINOX)
Công ty KAINOX tiến hành thi công thực tế dự án
Tiến độ và quy trình thi công
Ngay sau khi tiếp nhận mặt bằng, đội ngũ kỹ sư KAINOX đã nhanh chóng triển khai các bước thi công theo đúng tiêu chuẩn dành cho bếp ăn trường học bán trú:
-
Hoàn thiện bản vẽ kỹ thuật chi tiết, tối ưu luồng di chuyển của cấp dưỡng và học sinh khi nhận suất ăn.
-
Thi công đồng bộ toàn bộ hạng mục thiết bị inox, hệ thống điện – nước – hút mùi – thông gió, đảm bảo an toàn và phù hợp môi trường giáo dục.
-
Kiểm định an toàn trước khi nghiệm thu, bao gồm kiểm tra hệ thống điện, cấp nước, thoát nước và các thiết bị nhiệt.
-
Chạy thử và bàn giao vận hành thực tế, đồng thời hướng dẫn chi tiết quy trình sử dụng – vệ sinh – bảo trì cho đội ngũ cấp dưỡng của trường.
Với phương châm “Thi công chuẩn xác – Bàn giao đúng hẹn – Vận hành an toàn”, dự án được hoàn thành đúng tiến độ, mang đến một khu bếp sạch sẽ, hiện đại và tối ưu cho phục vụ bữa ăn bán trú hằng ngày của học sinh Trường Quốc tế Nam Sài Gòn.
-
Công ty CP SX TM DV KAINOX hoàn thành dự án theo đúng tiến độ đã cam kết
KAINOX trân trọng cảm ơn Ban Giám hiệu Trường Quốc tế Nam Sài Gòn đã tin tưởng lựa chọn chúng tôi đồng hành trong quá trình thi công và hoàn thiện khu bếp ăn bán trú.
Chúng tôi sẽ tiếp tục hỗ trợ nhà trường trong suốt thời gian bảo trì – bảo dưỡng – nâng cấp thiết bị, đảm bảo khu bếp luôn vận hành an toàn – sạch sẽ – hiệu quả nhằm phục vụ tốt nhất cho học sinh.
📍 Liên hệ KAINOX
Bạn đang tìm kiếm giải pháp thiết kế – thi công bếp ăn trường học bán trú, bếp học đường chuẩn an toàn?
KAINOX cung cấp thiết kế – sản xuất – lắp đặt trọn gói, phù hợp cho trường học, nhà ăn tập thể và mô hình giáo dục bán trú.
📞 Hotline: 0931 342 048
🌐 Website: www.kainox.com
🏭 Nhà máy sản xuất: Số 44/13 Vĩnh Phú 41, KP.Hòa Long, P. Lái Thiêu, TP. HCM
CÁC DỰ ÁN KAINOX ĐÃ TRIỂN KHAI
LÝ DO CHỌN KAINOX
HOTLINE: 093 134 2048
Hỗ trợ khách hàng 24/7
MUA SẢN PHẨM KAINOX
TẶNG
NGAY
100
%
PHÍ THIẾT KẾ
Đối Tác Hơn +20 Năm Với KAINOX
CHỨNG CHỈ - CHỨNG NHẬN
KAINOX đã thực hiện nhiều dự án về sản xuất và lắp đặt các thiết bị nhà bếp chuyên nghiệp cho các công trình trong nước và quốc tế. KAINOX có hơn 200 dự án tại Việt Nam và Lào, và là đối tác của nhiều nhãn hàng uy tín trên thế giới.
Đặc biệt, KAINOX chuyên thi công các giải pháp nhà bếp cao cấp, bao gồm nhà hàng, khách sạn 5 sao, và các khu căn tin bệnh viện chuẩn quốc tế. Với sự chuyên môn trong thiết kế, sản xuất và lắp đặt, KAINOX cung cấp các giải pháp bếp công nghiệp tùy chỉnh theo yêu cầu của khách hàng.
Với đội ngũ kỹ thuật có chuyên môn cao và kinh nghiệm, KAINOX đảm bảo tiến độ thi công và chất lượng lắp đặt luôn đạt yêu cầu cao, mang lại sự an tâm cho khách hàng trong suốt quá trình hợp tác.
MỌI SẢN PHẨM ĐỀU ĐƯỢC BẢO HÀNH CHÍNH HÃNG
NHỮNG CON SỐ ĐẠI DIỆN KAINOX
20+
NĂM KINH NGHIỆM
10000+
KHÁCH HÀNG HÀI LÒNG
1000+
CÔNG TRÌNH HOÀN THIỆN
2000+
SẢN PHẨM ĐA DẠNG
MUA SẢN PHẨM KAINOX
Tặng ngay
100
%
phí thiết kế
Chuyên gia bếp công nghiệp
Tư Vấn Tận Tâm - Chất Lượng Xứng Tầm
Giải pháp thiết kế linh hoạt KAINOX thiết kế & cung cấp các giải pháp bếp công nghiệp tùy chỉnh, phù hợp không gian và yêu cầu cụ thể của khách hàng. Điều này giúp tối ưu hóa quy trình làm việc & tận dụng tối đa không gian bếp.
Giá trị tốt cho khách hàng đầu tư KAINOX cung cấp sản phẩm với mức giá cạnh tranh, nhưng không làm giảm chất lượng.Tổng chi phí sở hữu, từ giá mua ban đầu đến chi phí vận hành và bảo trì, đều được tối ưu hóa để phù hợp với ngân sách.
Công ty KAINOX cam kết cung cấp các thiết bị bếp công nghiệp chất lượng cao, được sản xuất từ các vật liệu bền bỉ như thép không gỉ, đảm bảo an toàn thực phẩm và độ bền trong môi trường khắc nghiệt.
Dịch vụ hậu mãi và bảo hành toàn diện bao gồm bảo hành dài hạn và dịch vụ bảo trì định kỳ. Đội ngũ kỹ thuật của KAINOX sẵn sàng hỗ trợ khách hàng trong mọi tình huống, từ lắp đặt đến sửa chữa.
















