DỰ ÁN BẾP BẾN DU THUYỀN QUỐC TẾ – ANA MARINA NHA TRANG
Giới thiệu về Bến du thuyền Ana Marina – Nha Trang
Bến du thuyền Ana Marina Nha Trang là khu phức hợp đầy đủ tiện ích, là bến du thuyền đạt chuẩn quốc tế đầu tiên tại Việt Nam, kết nối cho các tuyến du thuyền đến các nước, vùng lãnh thổ Singapore, Hong Kong, Malaysia, Philippines, Indonesia…
Khi đến đây du khách sẽ được trải nghiệm các câu lạc bộ, trung tâm hội nghị, nhà hàng ăn uống cao cấp và biệt thự sang trọng trong bến du thuyền Nha Trang.
Thông tin dự án
Thông tin sơ bộ về công trình
ĐƠN VỊ: Công ty CP SX TM DV KAINOX
Hạng mục: Cung cấp thi công lắp đặt trọn gói hệ thống Bếp Bến Du Thuyền Quốc Tế
Đây là một cột mốc đáng tự hào, minh chứng cho sự tin tưởng từ phía chủ đầu tư đối với năng lực và kinh nghiệm của chúng tôi. KAINOX cam kết cung cấp giải pháp thiết kế, lắp đặt, và vận hành hoàn thiện, đáp ứng các tiêu chuẩn cao nhất về:
- Chất lượng thiết bị: Đảm bảo độ bền bỉ, hiệu suất cao và phù hợp với môi trường ven biển.
- An toàn vận hành: Thi công hệ thống gas, thông gió, và phòng cháy chữa cháy đạt chuẩn quốc tế.
- Thẩm mỹ và tối ưu hóa không gian: Mang lại sự tiện nghi, sang trọng, hòa hợp với đẳng cấp của bến du thuyền.
(Hình ảnh thuộc sở hữu KAINOX)
-
Công ty CP SX TM DV KAINOX tiến hành khảo sát & lên bản vẽ thiết kế
KAINOX xác định rằng việc khảo sát và lên ý tưởng là hai bước cực kỳ quan trọng trong quá trình thiết kế khu bếp nóng cho bến du thuyền đẳng cấp Quốc tế như Ana Marina Nha Trang.
Việc thực hiện kỹ lưỡng và có kế hoạch rõ ràng sẽ giúp đảm bảo rằng khu bếp không chỉ đáp ứng tốt các yêu cầu về công năng, an toàn, vệ sinh mà còn tạo ra một không gian làm việc hiệu quả và thẩm mỹ, góp phần nâng cao chất lượng dịch vụ.
Chính vì vậy đội ngũ kỹ sư của KAINOX đã thực từng bước vô cùng thận trọng và tỉ mỉ:
1. Khảo sát và lên ý tưởng thiết kế:
- KAINOX tiến hành khảo sát thực tế không gian bếp, đảm bảo tối ưu hóa diện tích và bố trí phù hợp với quy trình vận hành.
- Tư vấn giải pháp thiết kế đảm bảo tính thẩm mỹ, hiện đại, đồng thời đáp ứng các tiêu chuẩn an toàn vệ sinh thực phẩm và môi trường.
2. Lựa chọn và cung cấp thiết bị:
- Sử dụng các thiết bị bếp công nghiệp chất lượng cao, phù hợp với đặc thù của các bến du thuyền đẳng cấp quốc tế.
- Bao gồm: bếp Âu, bếp Á, hệ thống hút mùi, lò nướng, máy rửa chén, và các thiết bị chuyên dụng khác.
- Tất cả thiết bị được nhập khẩu hoặc sản xuất trực tiếp với công nghệ tiên tiến từ KAINOX.
3. Thi công lắp đặt:
- Thực hiện theo đúng bản vẽ và kế hoạch đã được phê duyệt.
- Đội ngũ kỹ thuật viên giàu kinh nghiệm đảm bảo việc lắp đặt chính xác, an toàn và đúng tiến độ.
4. Kiểm tra và bàn giao:
- Chạy thử hệ thống bếp để đảm bảo thiết bị vận hành ổn định.
- Bàn giao chi tiết và hướng dẫn sử dụng cho khách hàng.
Việc tuân thủ các bước này sẽ giúp đảm bảo dự án được thiết kế và thi công một cách chuyên nghiệp, đáp ứng đầy đủ các yêu cầu về hiệu quả, an toàn và vệ sinh.
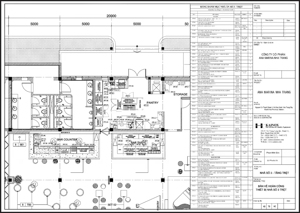
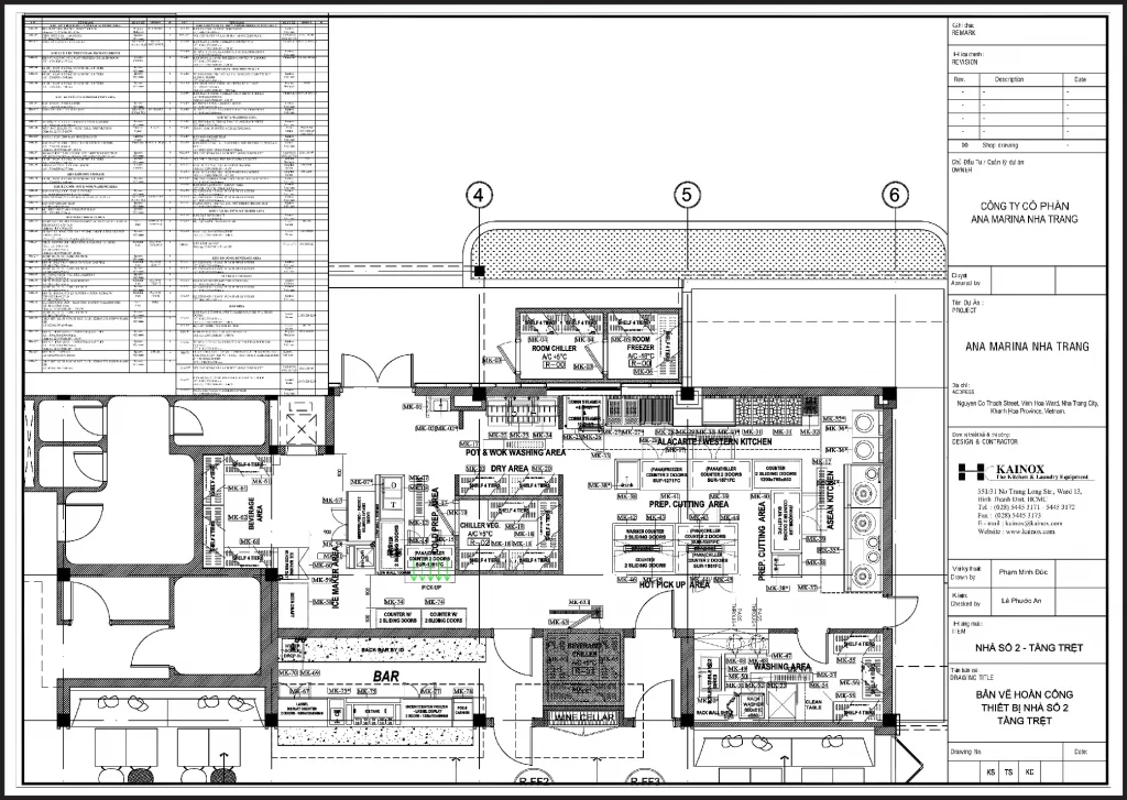
(Bản phác thảo thiết kế khu vực Bếp do Công ty CP SX TM DV KAINOX thực hiện)
-
Công ty CP SX TM DV KAINOX tiến hành thi công thực tế dự án Bếp công nghiệp cho Bến du thuyền Quốc tế Ana Marina Nha Trang
Bến du thuyền Ana Marina Nha Trang là một địa điểm cao cấp với yêu cầu đặc thù về hệ thống bếp công nghiệp. Khi lắp đặt bếp cho khu vực này, KAINOX cần đáp ứng các yêu cầu đặc thù về thiết kế, an toàn, vận hành, và thẩm mỹ, để đảm bảo hiệu suất cao trong môi trường hoạt động đặc biệt:
1. Lựa chọn thiết bị chuyên dụng
- Sử dụng các thiết bị bếp chất lượng cao, phù hợp với môi trường biển: chống ăn mòn, tiết kiệm năng lượng, và đạt tiêu chuẩn quốc tế.
- Cung cấp các thiết bị hiện đại như bếp gas công nghiệp, lò hấp nướng đa năng, máy rửa chén tự động, và hệ thống lưu trữ thực phẩm.
2. Hệ thống thông gió và an toàn
- Thi công hệ thống thông gió và hút mùi hiệu quả, phù hợp với không gian kín và sang trọng của bến du thuyền.
- Lắp đặt hệ thống an toàn gồm thiết bị cảnh báo rò rỉ gas, van khóa tự động, và hệ thống PCCC đạt chuẩn.
3. Thi công đúng tiến độ
- Đảm bảo quy trình lắp đặt nhanh chóng, chính xác và bàn giao đúng thời hạn, không ảnh hưởng đến các hoạt động khác của bến du thuyền.
4. Hỗ trợ vận hành và bảo trì
- Đào tạo nhân viên vận hành, cung cấp hướng dẫn chi tiết về bảo trì thiết bị.
- Cam kết dịch vụ bảo hành và bảo trì định kỳ để đảm bảo hệ thống bếp hoạt động ổn định, bền bỉ.
(Hình ảnh thực tế khi Công ty CP SX TM DV KAINOX triển khai thi công)
-
Công ty CP SX TM DV KAINOX hoàn thành dự án theo đúng tiến độ đã cam kết
Việc thi công và bàn giao dự án khu bếp theo đúng tiến độ đòi hỏi một kế hoạch chi tiết, quản lý hiệu quả, và sự hợp tác chặt chẽ giữa các bên liên quan. Bằng cách tuân thủ quy trình, quy định và yêu cầu ngay từ đầu khi triển khai dự án.
Với uy tín hơn 20 năm trong lĩnh vực thiết kế và thi công bếp công nghiệp, KAINOX cam kết mang đến giải pháp toàn diện, hiện đại, và phù hợp nhất cho không gian bếp của bến du thuyền.
Chúng tôi tự hào khi góp phần vào việc nâng cao chất lượng dịch vụ tại một trong những địa điểm du lịch và giải trí hàng đầu Việt Nam. Đội ngũ KAINOX đã thực hiện đúng tiến độ, với các tiêu chuẩn cao nhất về thẩm mỹ, an toàn, và hiệu suất vận hành.
Trân trọng cảm ơn quý chủ đầu tư đã tin tưởng và lựa chọn KAINOX cho dự án này!
CÁC DỰ ÁN KAINOX ĐÃ TRIỂN KHAI
LÝ DO CHỌN KAINOX
HOTLINE: 093 134 2048
Hỗ trợ khách hàng 24/7
MUA SẢN PHẨM KAINOX
TẶNG
NGAY
100
%
PHÍ THIẾT KẾ
Đối Tác Hơn +20 Năm Với KAINOX
CHỨNG CHỈ - CHỨNG NHẬN
KAINOX đã thực hiện nhiều dự án về sản xuất và lắp đặt các thiết bị nhà bếp chuyên nghiệp cho các công trình trong nước và quốc tế. KAINOX có hơn 200 dự án tại Việt Nam và Lào, và là đối tác của nhiều nhãn hàng uy tín trên thế giới.
Đặc biệt, KAINOX chuyên thi công các giải pháp nhà bếp cao cấp, bao gồm nhà hàng, khách sạn 5 sao, và các khu căn tin bệnh viện chuẩn quốc tế. Với sự chuyên môn trong thiết kế, sản xuất và lắp đặt, KAINOX cung cấp các giải pháp bếp công nghiệp tùy chỉnh theo yêu cầu của khách hàng.
Với đội ngũ kỹ thuật có chuyên môn cao và kinh nghiệm, KAINOX đảm bảo tiến độ thi công và chất lượng lắp đặt luôn đạt yêu cầu cao, mang lại sự an tâm cho khách hàng trong suốt quá trình hợp tác.
MỌI SẢN PHẨM ĐỀU ĐƯỢC BẢO HÀNH CHÍNH HÃNG
NHỮNG CON SỐ ĐẠI DIỆN KAINOX
20+
NĂM KINH NGHIỆM
10000+
KHÁCH HÀNG HÀI LÒNG
1000+
CÔNG TRÌNH HOÀN THIỆN
2000+
SẢN PHẨM ĐA DẠNG
MUA SẢN PHẨM KAINOX
Tặng ngay
100
%
phí thiết kế
Chuyên gia bếp công nghiệp
Tư Vấn Tận Tâm - Chất Lượng Xứng Tầm
Giải pháp thiết kế linh hoạt KAINOX thiết kế & cung cấp các giải pháp bếp công nghiệp tùy chỉnh, phù hợp không gian và yêu cầu cụ thể của khách hàng. Điều này giúp tối ưu hóa quy trình làm việc & tận dụng tối đa không gian bếp.
Giá trị tốt cho khách hàng đầu tư KAINOX cung cấp sản phẩm với mức giá cạnh tranh, nhưng không làm giảm chất lượng.Tổng chi phí sở hữu, từ giá mua ban đầu đến chi phí vận hành và bảo trì, đều được tối ưu hóa để phù hợp với ngân sách.
Công ty KAINOX cam kết cung cấp các thiết bị bếp công nghiệp chất lượng cao, được sản xuất từ các vật liệu bền bỉ như thép không gỉ, đảm bảo an toàn thực phẩm và độ bền trong môi trường khắc nghiệt.
Dịch vụ hậu mãi và bảo hành toàn diện bao gồm bảo hành dài hạn và dịch vụ bảo trì định kỳ. Đội ngũ kỹ thuật của KAINOX sẵn sàng hỗ trợ khách hàng trong mọi tình huống, từ lắp đặt đến sửa chữa.














































